Aukce pozemku 48 604 m2 Praha - Miškovice

Praha-Čakovice,
35 000 000 Kč
Výtěžek dražby

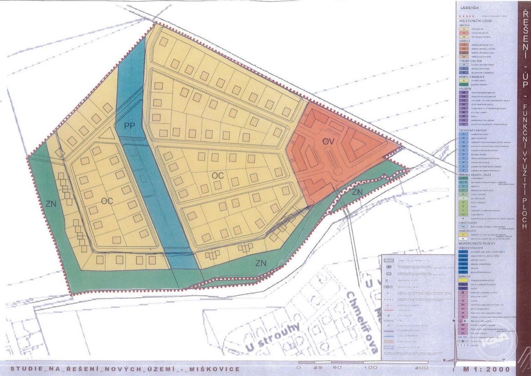
Aukce pozemku v Praze, kú. Miškovice o celkové výměře 48 604 m2, které jsou součástí projektu na změnu Z 2901/00 na čistě obytné území, která nebyla 3.6.2014 schválena. Nyní probíhá příprava nové žádosti o změnu územního plánu. Inženýrské sítě (elektřina, voda, kanalizace) jsou v dosahu, přístupové komunikace k pozemkům jsou obecní – zpevněná v šířce jednoho jízdního pruhu.

Nabídka
Nabídka
Číslo zakázkyKP011471
Druh zakázkyDražba
Stav zakázkyZrealizováno
Aktualizace31.05.2019
Dražba
Dražba
Druh dražbyAukce
Datum dražby 20. 06. 2019  10:00
Místo dražby www.jrdrazby.cz
Termín první prohlídky 20. 06. 2019  9:00
Termín druhé prohlídky 14. 05. 2019  9:00
Výtěžek dražby 35 000 000 Kč
Tržní cena 48 604 000 Kč
Minimální příhoz 100 000 Kč
Jistina 500 000 Kč
Parametry
Parametry
Nemovitost
Využití z hlediska ÚPZemědelství
Forma vlastnictvíOsobní
Dopravní dostupnostMHD, Auto
KomunikaceAno
Plochy
Plocha parcely 48 604 m2
Inženýrské Sítě
Elektřina na pozemkuNa hranici
VodaVodovod
KanalizaceMěstská
PlynNa hranici
Zobrazit na mapě
Zobrazit na mapě
Cenové podmínky
Cenové podmínky
35 000 000 Kč
Výtěžek dražby
48 604 000 Kč
Tržní cena
500 000 Kč
Jistina
Zobrazit postup dražby
Zobrazit postup dražby

Klikněte na tlačítko "Zajímá mě průběh" a podívejte se, kolik dražitelů se této dražby zúčastnilo a v jaké výši byly jednotlivé příhozy.

Potřebujete poradit? Spojte se s námi
+420 257 313 330

Vaše osobní údaje využijeme pouze za účelem komunikace o zaslané nabídce. Nebudeme vám zasílat newsletter ani vaše údaje nepředáme třetím stranám.
Více o ochraně osobních údajů zde.