Aukce domu 7+2 543 m2 s pozemkem 13 789 m2 a výhledem do údolí

Příbram, Nalžovice, Chlum
11 099 900 Kč
Výtěžek dražby

Aukce velikého dvougeneračního domu 7+2 s užitnou plochou 543 m2 v Chlumu, Nalžovice. Dům byl postavený v roce 2004 a má tři nadzemní podlaží. Pozemky k domu mají výměru 13 789 m2, kdy oplocená zahrada má výměru cca 10 104 m2 a zbytek je louka s lesem o výměře 3 685 m2. Dům je ihned volný k nastěhování.

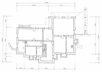
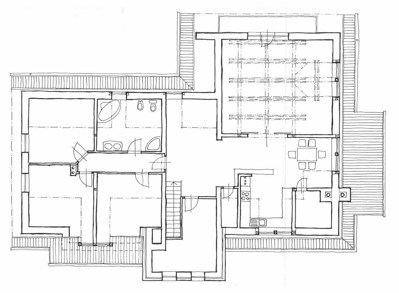
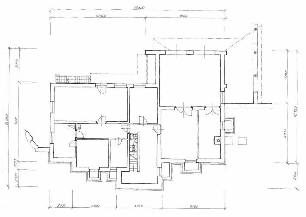
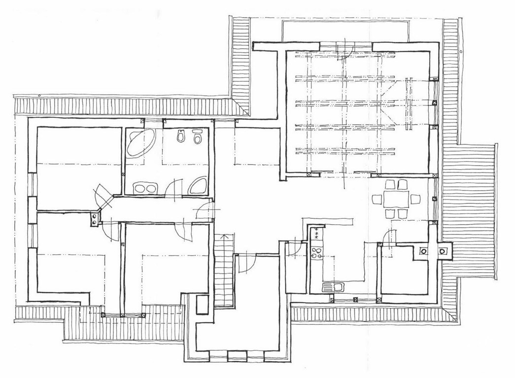
Dům má tyto dispozice:
Přízemí: Společenská místnost s krbem a vstupem na terasu, pokoj pro hosty se samostatným WC, samostatná bytová jednotka 2+kk
Podkroví: Byt 5+1: Obývací pokoj, kuchyň s jídelnou, dva dětské pokoje, ložnice, pokoj – šatna, koupelna s WC, pracovna.
Suterén: kuchyň s přípravnou, sklad, dílna, kotelna, uhelna, garáž pro dvě auta.

Dům je možné rozdělit na 4 až 6 samostatných apartmánů, nebo upravit na penzion.

Parkovat je možné v domě, kde jsou dvě místa a dále je zde dalších 8 parkovacích míst. Další dvě garáže jsou u bazénu.

Celá zahrada je oplocena zděným plotem a je mírně svažitá. Naleznete zde kaskádu umělých jezírek s lekníny a okrasné dřeviny.

V západní části zahrady je vybudovaný veliký bazén s terasou, pod kterou se nacházejí další tři garáž, pro dvě auta a zahradní techniku. Bazén má rozměry 12,5 x 5,5 m s přípravou pro roletu.

Náklady na provoz domu jsou 4 000 Kč za elektřinu a cca 1,1 tuny uhlí na rok.

V obci Nalžovice je základní občanskou vybavenost, tedy obchod, pošta, mateřská a základní škola.

Veškerá omezení zapsaná v katastru nemovitostí prodejem z insolvence zanikají, možno financovat předhypotečním úvěrem, který vám vyřídíme.

Nabídka
Nabídka
Číslo zakázkyKD011806
Druh zakázkyDražba
Stav zakázkyZrealizováno
Aktualizace21.04.2023
Dražba
Dražba
Druh dražbyAukce
Datum dražby 28. 03. 2023  11:00
Místo dražby www.exdrazby.cz
Termín první prohlídky 08. 03. 2023  10:00
Termín druhé prohlídky 15. 03. 2023  16:00
Výtěžek dražby 11 099 900 Kč
Tržní cena 15 857 000 Kč
Minimální příhoz 10 000 Kč
Jistina 500 000 Kč
Parametry
Parametry
Nemovitost
Velikost bytu 7+2 , 543 m2
Konstrukce domuCihla
Stav nemovitostiVelmi dobrý
Forma vlastnictvíOsobní
TopeníÚstřední palivové
ParkováníGaráž, Venkovní veřejné
Počet parkovacích míst4
PENB třídaG - Mimořádně nehospodárná
Plochy
Užitná plocha 543 m2
Obytná plocha 492 m2
Zastavěná plocha 226 m2
Plocha parcely 13 789 m2
Inženýrské Sítě
Elektřina230/400 V
VodaVlastní studna
KanalizaceČistička
Zobrazit na mapě
Zobrazit na mapě
Cenové podmínky
Cenové podmínky
11 099 900 Kč
Výtěžek dražby
15 857 000 Kč
Tržní cena
500 000 Kč
Jistina
Zobrazit postup dražby
Zobrazit postup dražby

Klikněte na tlačítko "Zajímá mě průběh" a podívejte se, kolik dražitelů se této dražby zúčastnilo a v jaké výši byly jednotlivé příhozy.

Potřebujete poradit? Spojte se s námi
+420 257 313 330

Vaše osobní údaje využijeme pouze za účelem komunikace o zaslané nabídce. Nebudeme vám zasílat newsletter ani vaše údaje nepředáme třetím stranám.
Více o ochraně osobních údajů zde.