Aukce barokního zámku Krnsko okr. Mladá Boleslav s anglickým parkem 4 ha

Mladá Boleslav, Krnsko
15 700 000 Kč
Výtěžek dražby

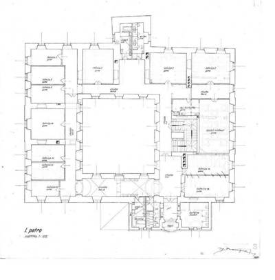
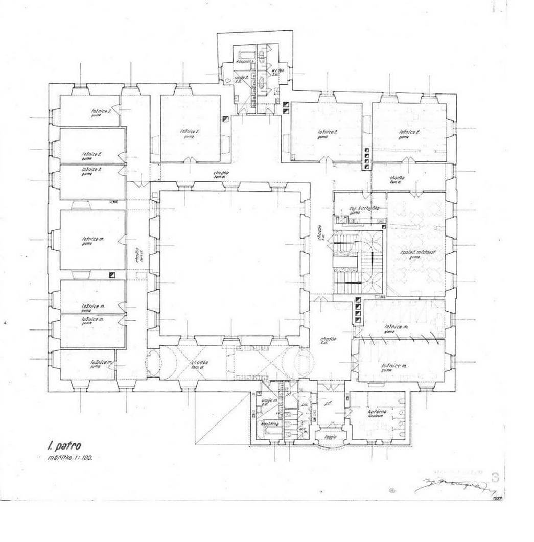
Zámek je čtyřkřídlá dvoupatrová budova, zčásti podsklepená, s vnitřním čtvercovým dvorem. Na severním barokním křídle je ve středu rizalitu polokruhový portál, nad nímž vystupuje čtyřboká věž s cibulovitou bání. Na třech stranách menšího nádvoří se zachovaly renesanční arkády na pilířích s obytným ochozem, který propojuje všechny místnosti zámku s centrálním schodištěm umístěným v jižním křídle. V přízemí se nachází zhruba 11 místností převážně zaklenutých, původně zde byla umístěna kuchyně, jídelna a pobytové místnosti. V patře je 13 obytných místností se společným sociálním zázemím. V krovu se nachází ještě 3 pobytové místnosti a umývárna vestavěné do sedlové střechy jižního průčelí, zbytek krovu je nevyužitá půda. Jihovýchodní část objektu je podsklepená, ze zahrady přístupná z terénu. Západním směrem od zámecké budovy se rozprostírá bývalý anglický park o rozloze cca 4 ha, zřízený na místě zasypaných příkopů bývalého opevnění tvrze. Na východní straně zámku byla v poslední době obnovena původní zámecká nádrž. K zámku vedou dvě cesty – dnes je nejvíce používaná brána přístupná nejkratší cestou po místní komunikaci kolem rybníka ze středu obce. Hlavní brána je situovaná v ose hlavního vstupu do zámku a po stranách je zdůrazněna dvojicí barokních soch. Stav předmětu aukce odpovídá stáří a zhoršené údržbě

Nabídka
Nabídka
Číslo zakázkyKD011456
Druh zakázkyDražba
Stav zakázkyZrealizováno
Aktualizace18.12.2018
Dražba
Dražba
Druh dražbyAukce
Datum dražby 18. 12. 2018  11:00
Místo dražby www.jrdrazby.cz
Termín první prohlídky 05. 12. 2018  10:00
Termín druhé prohlídky 13. 12. 2018  10:00
Výtěžek dražby 15 700 000 Kč
Tržní cena 17 000 000 Kč
Minimální příhoz 100 000 Kč
Jistina 500 000 Kč
Parametry
Parametry
Nemovitost
Velikost bytu Větší než 9+2 , 1 878 m2
Konstrukce domuSmíšená
Stav nemovitostiDobrý
Forma vlastnictvíOsobní
TopeníLokální palivové
ParkováníVenkovní vyhrazené, Kryté stání
Výtahne
Infrastruktura v okolíMístní úřad
Dopravní dostupnostAuto
PENB třídaG - Mimořádně nehospodárná
Plochy
Užitná plocha 1 878 m2
Obytná plocha 1 000 m2
Zastavěná plocha 658 m2
Plocha parcely 38 339 m2
Terasa 50 m2
Balkónano
Sklepano
Zahradaano
Inženýrské Sítě
Elektřina230/400 V
VodaVlastní studna
KanalizaceSeptik
Zobrazit na mapě
Zobrazit na mapě
Cenové podmínky
Cenové podmínky
15 700 000 Kč
Výtěžek dražby
17 000 000 Kč
Tržní cena
500 000 Kč
Jistina
Zobrazit postup dražby
Zobrazit postup dražby

Klikněte na tlačítko "Zajímá mě průběh" a podívejte se, kolik dražitelů se této dražby zúčastnilo a v jaké výši byly jednotlivé příhozy.

Potřebujete poradit? Spojte se s námi
+420 257 313 330

Vaše osobní údaje využijeme pouze za účelem komunikace o zaslané nabídce. Nebudeme vám zasílat newsletter ani vaše údaje nepředáme třetím stranám.
Více o ochraně osobních údajů zde.