Dražba dvou činžovních domů v historickém centru města Cheb

Cheb, ul. Cechovní
3 600 000 Kč
Výtěžek dražby

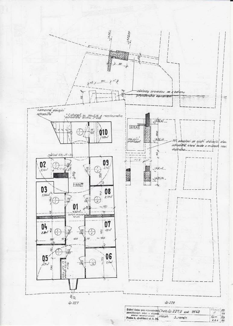
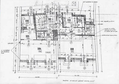
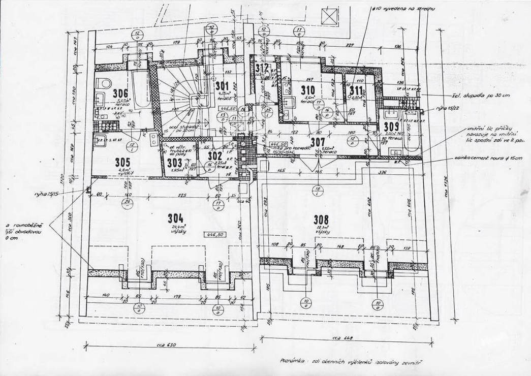
Dražby dvou ČD v historickém centrum města Cheb ulice Cechovní. Bytové domy jsou provozně i funkčně propojeny a lze na ně nahlížet jako na jednu stavbu. Jsou součástí řadové vnitřní historické zástavby centra města Cheb. Budova je v současné době užívána v prostorách 3. NP vlastníkem, kde je byt 2+1 vytápěn. Ostatní prostory v 3. NP a 2. NP a 1. NP nejsou vytápěny ani temperovány a jsou příležitostně užívány jako skladiště. Podkrovní byty nejsou uživatelné, jsou v havarijním stavu. Stáří budov lze pouze odhadnout na cca rok 1800. V roce 1962 budovy prošly rekonstrukcí, kde část domu do dvora byla pravděpodobně ubourána, bylo provedeno funkční i provozní propojení, byla provedena změna vnitřní dispozice. V roce 1994 byl dům vyklizen, následně v roce 2000 prošel částečnou rekonstrukcí vnitřku suterénu, přízemí, 2.NP a 3.NP. Podkroví zůstalo ve stavu ze 60. let minulého století. Dražba z insolvenčního řízení je nejbezpečnější způsob nabytí majetku, veškeré omezení zapsaná v katastru zanikají. Pro více informací kontaktujte makléře.

Nabídka
Nabídka
Číslo zakázkyKC011537
Druh zakázkyDražba
Stav zakázkyZrealizováno
Aktualizace11.02.2021
Dražba
Dražba
Druh dražbyDobrovolná
Datum dražby 10. 10. 2019  10:00
Místo dražby www.jrdrazby.cz
Termín první prohlídky 07. 10. 2019  14:00
Termín druhé prohlídky 09. 10. 2019  14:00
Výtěžek dražby 3 600 000 Kč
Tržní cena 3 600 000 Kč
Minimální příhoz 10 000 Kč
Jistina 200 000 Kč
Parametry
Parametry
Nemovitost
Konstrukce domuSmíšená
Stav nemovitostiŠpatný
Forma vlastnictvíOsobní
TopeníÚstřední palivové
ParkováníVenkovní vyhrazené, Venkovní veřejné
Infrastruktura v okolíŠkola, Školka, Nákupní centrum, Restaurace, Pošta, Místní úřad, Lékař, Kulturní zařízení
Dopravní dostupnostAuto
PENB třídaG - Mimořádně nehospodárná
Plochy
Užitná plocha 366 m2
Obytná plocha 262 m2
Zastavěná plocha 134 m2
Plocha parcely 167 m2
Sklep 80 m2
Inženýrské Sítě
Elektřina230/400 V
VodaVodovod
KanalizaceMěstská
PlynZaveden
Zobrazit na mapě
Zobrazit na mapě
Cenové podmínky
Cenové podmínky
3 600 000 Kč
Výtěžek dražby
3 600 000 Kč
Tržní cena
200 000 Kč
Jistina
Zobrazit postup dražby
Zobrazit postup dražby

Klikněte na tlačítko "Zajímá mě průběh" a podívejte se, kolik dražitelů se této dražby zúčastnilo a v jaké výši byly jednotlivé příhozy.

Potřebujete poradit? Spojte se s námi
+420 257 313 330

Vaše osobní údaje využijeme pouze za účelem komunikace o zaslané nabídce. Nebudeme vám zasílat newsletter ani vaše údaje nepředáme třetím stranám.
Více o ochraně osobních údajů zde.